3
$799,900 Sale
Listed 13 hours ago
43 Judd Drive
· 3
· 3
· 2
· 1512
Key Facts
Key facts for 43 Judd Drive
Property Type
House, Bungalow
Parking
2 garage, Private Drive Double Wide 4 parking
MLS #
40777276
Size
1512 sqft
Basement
Full,Unfinished,Sump Pump
Listed on
2025-10-08
Lot size
-
Tax
-
Days on Market
2
Year Built
-
Maintenance Fee
-
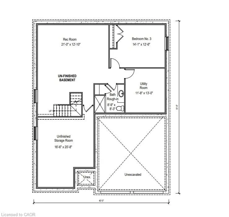
Description
Stunning new bungalow TO BE BUILT in the quaint town of Simcoe. This modern 1512 sq. ft. home offers the perfect combination of convenience and style. Ideally located near shopping, restaurants, schools, and Highway 3 for easy commuting, this home is perfect for busy families and professionals alike.... Step inside and experience the spaciousness of 9 ft ceilings throughout, with a grand 10 ft tray ceiling in the living room and raised ceiling in the second bedroom. The main floor features two generous bedrooms, including a primary suite with a luxurious ensuite bath, complete with a tiled shower and glass door. This home will feature a charming brick and stone exterior, along with a covered front porch and an expansive rear covered concrete porch—perfect for enjoying your outdoor space in comfort. The oversized garage with insulated doors provides direct access to the foyer, offering both convenience and practicality. As a new build, you’ll have the exciting opportunity to personalize your dream home by selecting cabinets, countertops, flooring, ensuite tiles, plumbing fixtures, light fixtures, front door, and paint colors. The unfinished basement provides possibilities for future expansion—whether you choose to create a cozy entertainment area, additional bedrooms, or a home office, the choice is yours. Don’t miss out on this incredible opportunity to own a brand-new home in Simcoe. Book your appointment to start picking out your finishes., Directions:Highway 3 to Ireland Road to Judd Drive, Exclusions:
Similar Properties (No results)
Listing courtesy of: RE/MAX ERIE SHORES REALTY INC. BROKERAGE